Триерный блок служит для того, чтобы выделять из зерновой массы зерно различной длины: длинные (овсюг, соломка) и короткие (куколь, гречишка, дробленое зерно).
Используются как в составе зерноочистительных комплексов, так и автономно.
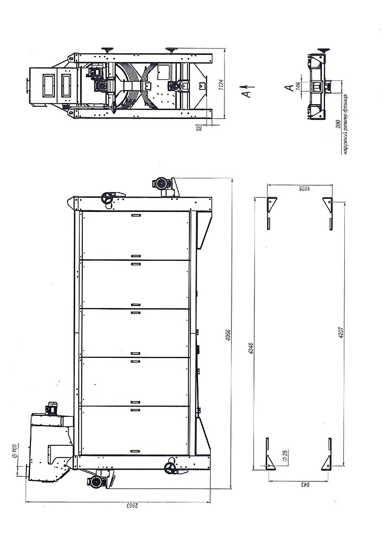
Принцип работы триерного блока предполагает следующую последовательность операций: зерновая смесь поступает во вращающийся ячеистый триерный цилиндр, постепенно перемещаясь к другому его концу.
Поверхность цилиндра захватывает зерно или примеси, которые попадают в ячейки. После попадание вверх они с помощью шнека выводятся в приемник через горловину.
Отличительные функции триерных блоков Т-8 по отношению, как ранее так и ныне производимыми, в следующем:
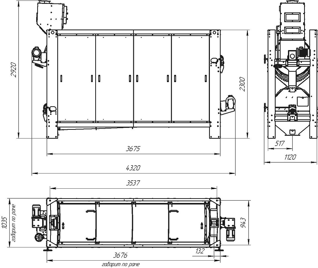
Основные технические характеристики
| Производительность при очистке семян пшеницы, т/ч | 8 | |
| Число оборотов триерных цилиндров, об/мин не более | 50 | |
| Расход воздуха на аспирацию, м³/час | 1100 | |
|
Чистота семян, %, не менее:
кукуруза, подсолнечник пшеница, горох, рис, рожь, ячмень, овес, гречиха, просо, лен-долгунец рапс, огурец капуста белокочанная и краснокочанная, лук морковь |
98 97 96 95 90 |
|
| Масса машины, кг, не более | 1500 | |
|
Габаритные размеры, не более:
длина, мм ширина, мм высота, мм |
4310 1130 2765 |
|
| Угол наклона триерных цилиндров, градусы | 2 | |


Наша компания располагает собственным автопарком. Доставка осуществляется в рабочие дни с 9-00 до 20-00 от 3 до 25 дней. Оформляется доставка одновременно с заказом.